
SJTC-Z-2 離心式通風機
一、特性及應用
SJTC-Z-2離心式通風機,可作為一般工廠及大型建筑物的室內通風換氣用。輸送空氣和其他不自燃的、對人體無害的、對鋼材無腐蝕性的氣體。氣體內不含粘性物質,所含塵土及硬質顆粒物不大于150mg/m3,氣體溫度不得超過80℃。
防腐型,用于輸送有腐蝕性的氣體,可用玻璃鋼或鋼板滾塑、不銹鋼等材料制作。
防爆型,用于輸送易燃易爆的氣體,防爆型電機,葉輪由鑄鋁或鋼制(鋼制時設防爆安全環)。
防腐防爆型,用于輸送有腐蝕性且易燃易爆的氣體。
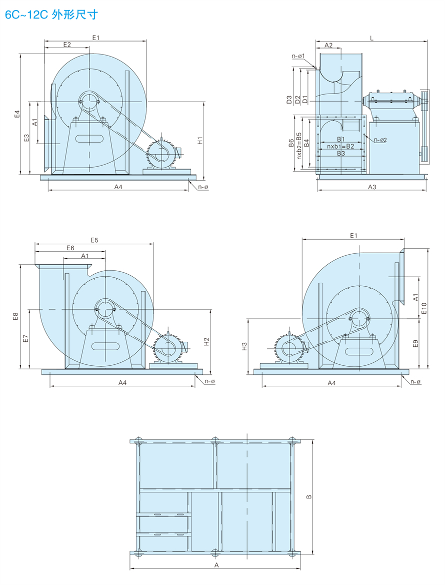
型式分為右旋和左旋兩種,傳動方式有A、B、C、D四種,6#以下采用A式,7~12#采用C、D式,16#以上采用B式。機號6#以下的4-72型風機主要有葉輪、機殼、進風口等部分配直聯電動機組成,7#以上除具有上述部分外還有傳動部分。
葉輪:模壓后傾葉片,旋壓流線型一體式前盤,大型葉輪制作平臺定位,機器人焊接,且平衡配重。分布均勻,氣動性能優良,效率高,運轉平穩可靠。
機殼:采用碳鋼焊接制作,可制成兩種不同型式,12.5#以下制成整體式,16#以上制成兩開式,用緊固件連接,便于運輸和安裝。
進風口:收斂式流線型旋壓成型;與軸向平行的截面為曲線形狀,進氣流暢,壓損較小。
傳動組:傳動部分由主軸、軸承箱、滾動軸承、帶輪或聯軸器組成。
SJTC-Z-Ex防爆離心式通風機,整機防爆。依據國家《強制性產品認證實施規則防爆電氣》細則要求,通過國家防爆產品強制性CCC認證,具備防爆CCC認證證書、防爆合格證、防爆檢驗報告。
SJTC-Z-E離心式通風機,新標能效備案,符合《通風機能效限定值及能效等級》標準要求。

三、離心式通風機進出風口和旋轉方向識別示意圖
離心風機的旋向及安裝角度:離心風機的旋向分為左旋(逆時針)和右旋(順時針)。
左旋:是指從風機的傳動端(指電機側或皮帶側或聯軸器側)來看,風機葉輪按逆時針方向旋轉。
右旋:是指從風機的傳動端來看,風機葉輪按順時針方向旋轉。

四、空氣標準狀況說明
空氣標準狀況,指通常的風機性能參數是轉化成標準狀態下的參數。標準狀況是指在大氣壓101325帕、20攝氏度、濕度為50%的空氣狀態,此時空氣的密度為1.2kg/m3。標準狀況簡寫為NTP。



















SJTC-Z-9 離心式通風機
一、特性及應用
SJTC-Z-9離心式通風機,可作為一般工廠及大型建筑物的室內通風換氣用。輸送空氣和其他不自燃的、對人體無害的、對鋼材無腐蝕性的氣體。氣體內不含粘性物質,所含塵土及硬質顆粒物不大于150mg/m3,氣體溫度不得超過80℃。
防腐型,用于輸送有腐蝕性的氣體,可用玻璃鋼或鋼板滾塑、不銹鋼等材料制作。
防爆型,用于輸送易燃易爆的氣體,防爆型電機,葉輪由鑄鋁或鋼制(鋼制時設防爆安全環)。
防腐防爆型,用于輸送有腐蝕性且易燃易爆的氣體。
型式分為右旋和左旋兩種,傳動方式有A、C、E三種,6#以下采用A式,7~20#一般采用C式,作排風使用,送風工況下可按要求制成E式傳動。SJTC-Z-9X2型離心風機的傳動方式為E式。
葉輪:模壓后傾弧形葉片,旋壓流線型一體式前盤,大型葉輪制作平臺定位,機器人焊接,平衡配重分布均勻,氣動性能優良,效率高,運轉平穩可靠。
機殼:采用碳鋼焊接制作,可制成兩種不同型式,12.5#以下制成整體式,12.5#以上制成兩開式,用緊固件連接,便于運輸和安裝。
進風口:收斂式流線型旋壓成型:與軸向平行的截面為曲線形狀,進氣流暢,壓損較小。
傳動組:傳動部分由主軸、軸承箱、滾動軸承、帶輪或聯軸器組成。
SJTC-Z-Ex防爆離心式通風機,整機防爆。依據國家《強制性產品認證實施規則防爆電氣》細則要求,通過國家防爆產品強制性CCC認證,具備防爆CCC認證證書、防爆合格證、防爆檢驗報告。
SJTC-Z-E離心式通風機,新標能效備案,符合《通風機能效限定值及能效等級》標準要求。

三、離心式通風機進出風口和旋轉方向識別示意圖
離心風機的旋向及安裝角度:離心風機的旋向分為左旋(逆時針)和右旋(順時針)。
左旋:是指從風機的傳動端(指電機側或皮帶側或聯軸器側)來看,風機葉輪按逆時針方向旋轉。
右旋:是指從風機的傳動端(指電機側或皮帶側或聯軸器側)來看,風機葉輪按順時針方向旋轉。

四、空氣標準狀況說明
空氣標準狀況,指通常的風機性能參數是轉化成標準狀態下的參數。標準狀況是指在大氣壓101325帕、20攝氏度、濕度為50%的空氣狀態,此時空氣的密度為1.2kg/m3。標準狀況簡寫為NTP。





















SJTC-G 高壓離心式通風機
一、特性及應用
SJTC-G-9、SJTC-G-6高壓離心式通風機,一般用于高壓強制通風,輸送空氣和其他不自燃的、對人體無害的、對鋼材無腐蝕性的氣體。氣體內不含粘性物質,所含塵土及硬質顆粒物不大于150mg/m3,氣體溫度不得超過80℃。
防腐型,用于輸送有腐蝕性的氣體,可用玻璃鋼或鋼板滾塑、不銹鋼等材料制作。
防爆型,用于輸送易燃易爆的氣體,防爆型電機,葉輪由鑄鋁或鋼制(鋼制時設防爆安全環)。
防腐防爆型,用于輸送有腐蝕性且易燃易爆的氣體,一般采用不銹鋼材質。
型式分為右旋和左旋兩種,傳動方式有A、D兩種,≤6.3#采用A式,>6.3#一般采用D式。
葉輪:采用前傾彎曲葉片,葉輪擴壓器外緣最高圓周速度不超過140m/s,大型葉輪制作平臺定位,機器人焊接,平衡配重分布均勻,氣動性能優良,效率高,運轉平穩可靠。
機殼:采用碳鋼焊接制作,可制成兩種不同型式,12.5#以下制成整體式,12.5#以上制成兩開式,用緊固件連接,便于運輸和安裝。
進風口:收斂式流線型旋壓成型;與軸向平行的截面為曲線形狀,進氣流暢,壓損較小。
傳動組:由主軸、軸承箱、聯軸器、防護罩等組成。主軸采用優質鋼,軸承箱為一體式。
SJTC-G-Ex防爆高壓離心式通風機,整機防爆。依據國家《強制性產品認證實施規則防爆電氣》細則要求,通過國家防爆產品強制性CCC認證,具備防爆CCC認證證書、防爆合格證、防爆檢驗報告。

三、離心式通風機進出風口和旋轉方向識別示意圖
離心風機的旋向及安裝角度:離心風機的旋向分為左旋(逆時針)和右旋(順時針)。
左旋:是指從風機的傳動端(指電機側或皮帶側或聯軸器側)來看,風機葉輪按逆時針方向旋轉。
右旋:是指從風機的傳動端(指電機側或皮帶側或聯軸器側)來看,風機葉輪按順時針方向旋轉。

四、空氣標準狀況說明
空氣標準狀況,指通常的風機性能參數是轉化成標準狀態下的參數。標準狀況是指在大氣壓101325帕、20攝氏度、濕度為50%的空氣狀態,此時空氣的密度為1.2kg/m3。標準狀況簡寫為NTP。






